信息摘要:新邑航打造的城南优品道厨房项目有上百间餐饮门店,每个门店的厨房设备、抽排烟系统情况不一,设计跟生产任务都很严峻。稍有不慎,就会拖慢整体工期,…
城南优品道厨房项目位于双流国际新城核心板块,东升白衣上街,该片区属于目前双流具有活力的国际新城核心区域,也是双流政府着力打造的高档住宅居住集中群及商业中心。占地8500多亩地,8大主题公园,由一条白河,三支渠,两条水系构成南北长达8公里,总面积达5.64平方公里的十字绿化带。又以项目旁边的中心公园为十字交叉中心点建海,形成8大主题公园9大湖泊的格局。
.jpg)
城南优品道
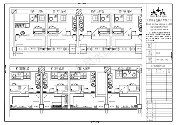
由于城南优品道是商业中心,又有美食广场,面积硕大,有上百间餐饮门店,每个门店的厨房设备、厨房抽排烟系统实际需求情况不一样,对厨房设备的型号、款式、大小也都有不同的要求,所以,这对新邑航的设计部和生产部还有项目部的工作量,是十分巨大的。而且,就厨房设备来说,优品道的厨房设备需求量大,很多厨房设备需要提前预留。所以,为了避免拖慢厨房工程整体工期,造成客户损失的情况,新邑航科技在签订厨房工程合同之前,提前意识到这个问题,第一时间针对厨房设计图纸对应的设备型号进行生产购买,提前预留。最终,厨房设备的货也是提前十多天就到齐了,为客户节省了时间,在规定的时间内,顺利完工!
.jpg)
平面设计图

